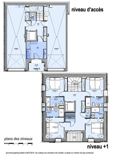
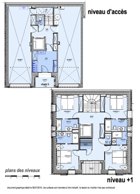
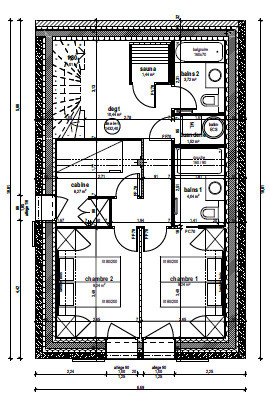
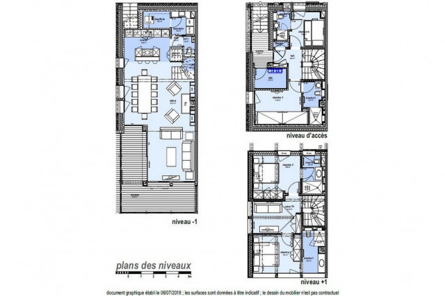
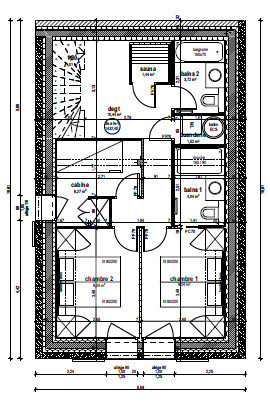
Holidays rental - Les Grangeraies
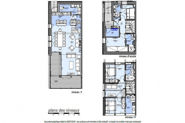
Les Grangeraies area 6 people 84 m2
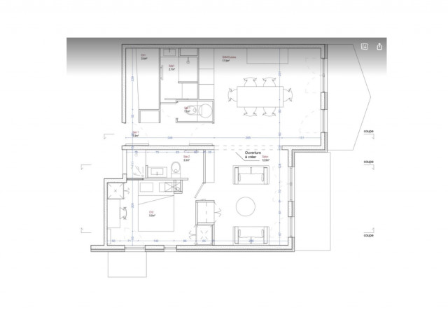
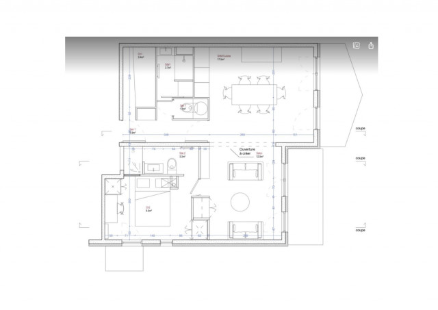
Les Grangeraies area 4 people 66 m2
-
Name of the residence / chalet :
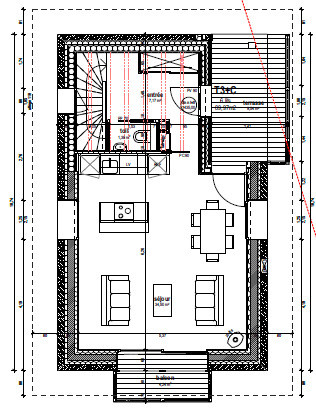
- Charmettes
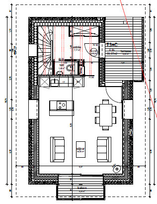
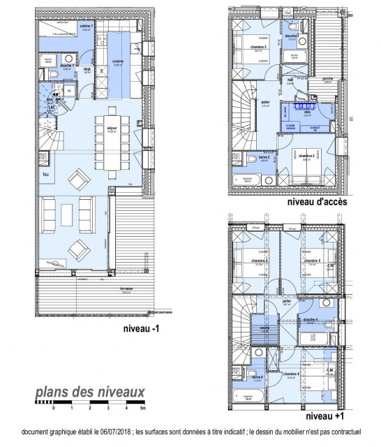
Les Grangeraies area 6 people 40 m2




































































































































































































































































































































































































































































