Holidays rental - Les Grangeraies - Page 2
Les Grangeraies area 6 people 47 m2
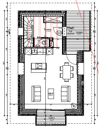
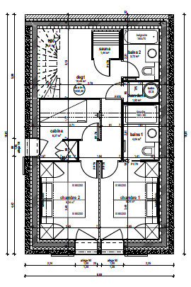
Les Grangeraies area 8 people 120 m2
-
Name of the residence / chalet :
- Charmettes
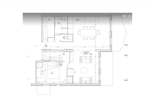
Les Grangeraies area 6 people 84 m2









































































































































































































































































































































































































































