Apartments and chalets - Page 7
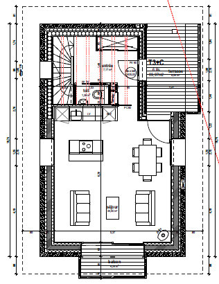
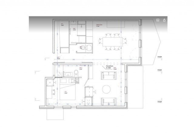
La Villette area 4 people 60 m2
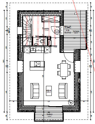
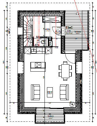
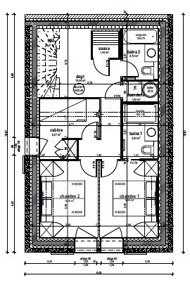
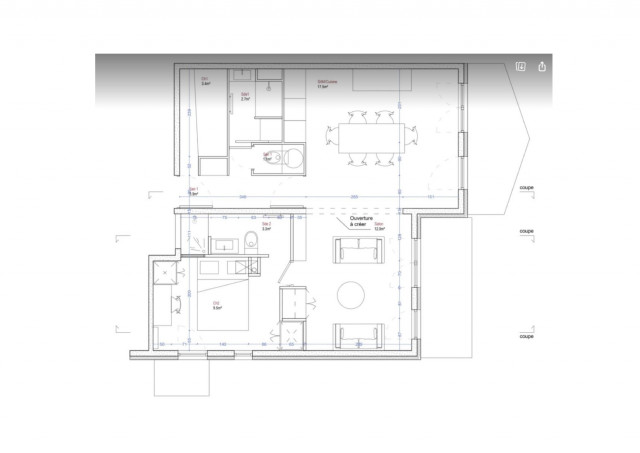
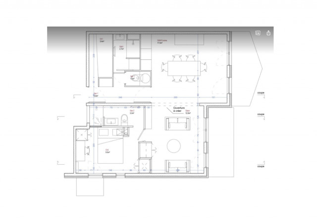
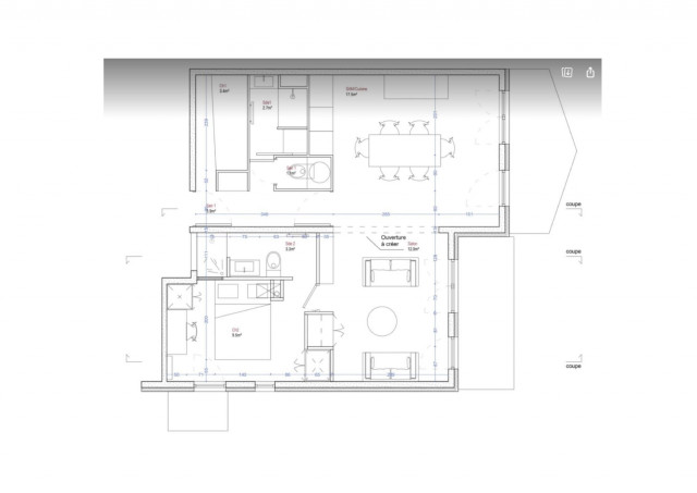
Les Places area 6 people 76 m2
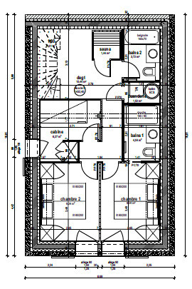
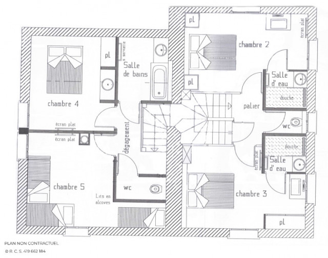
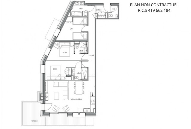
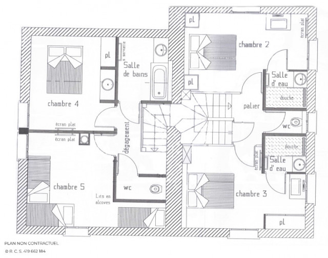
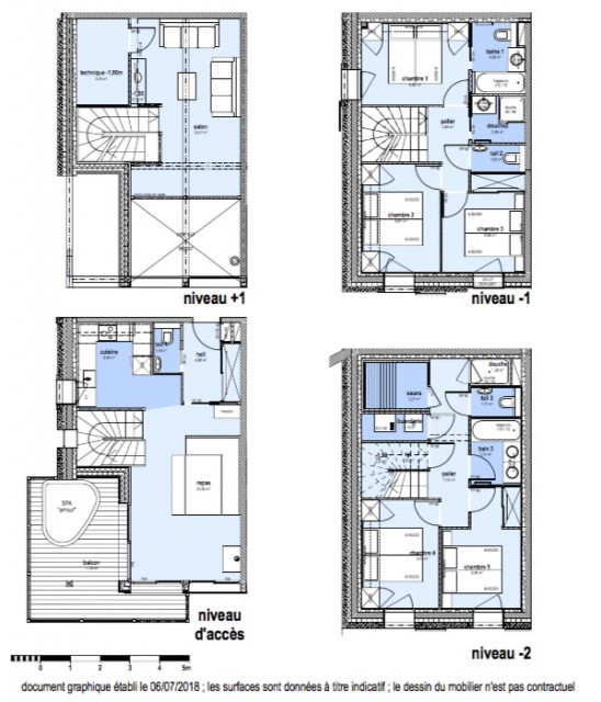
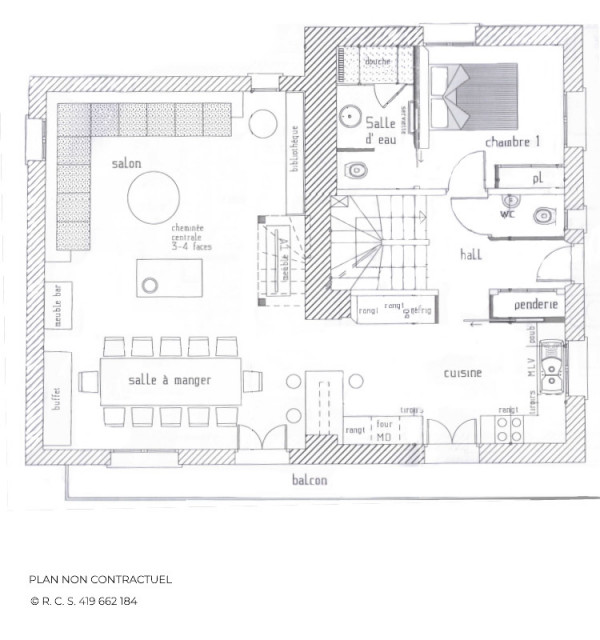
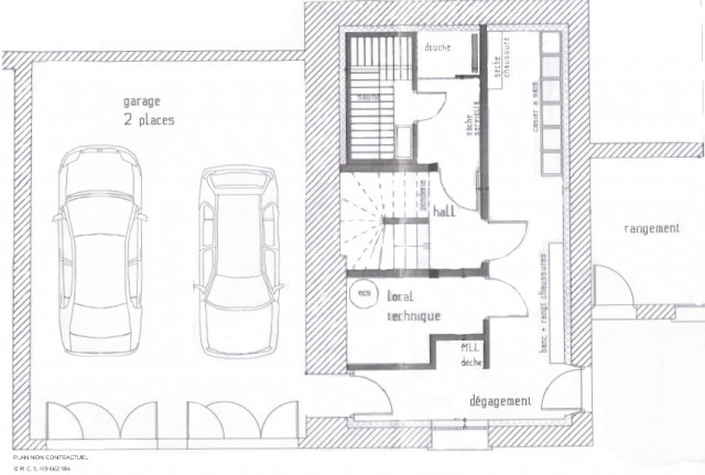
Les Places area 8 people 125 m2
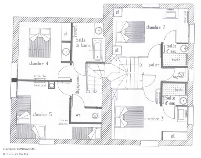
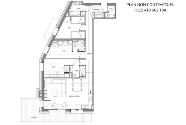
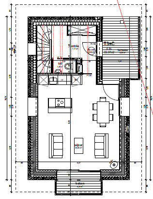
Village center 8 people 93 m2
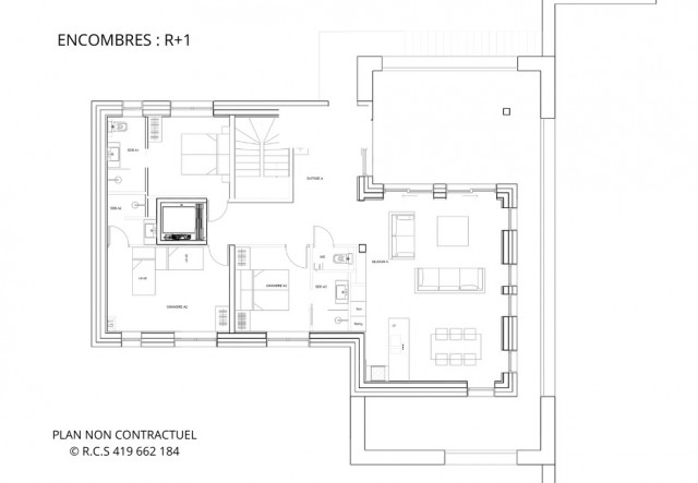
Les Grangeraies area 6 people 49 m2
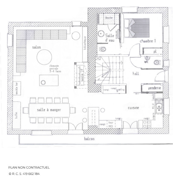
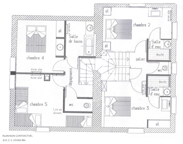
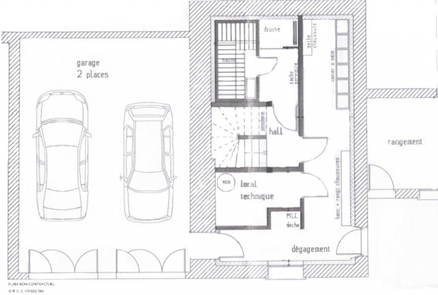
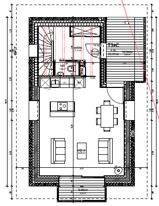
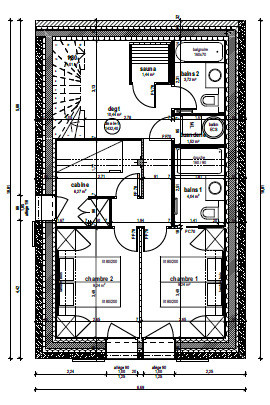
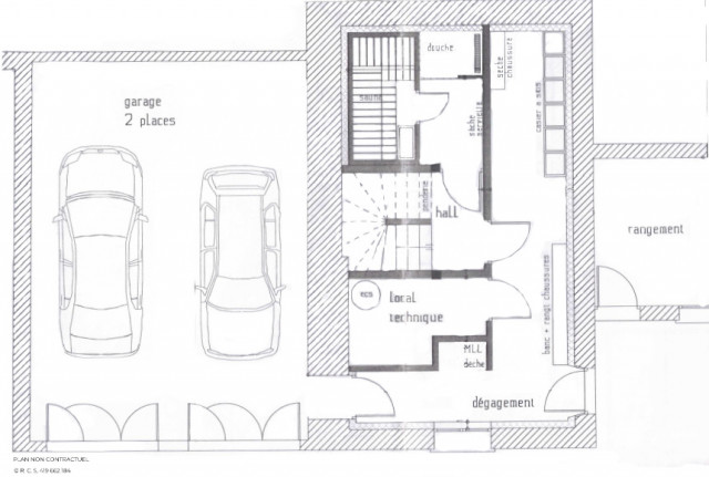
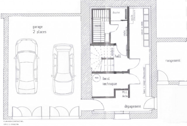
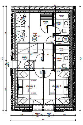
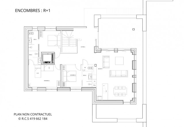
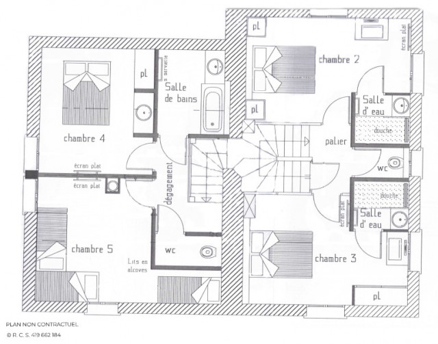
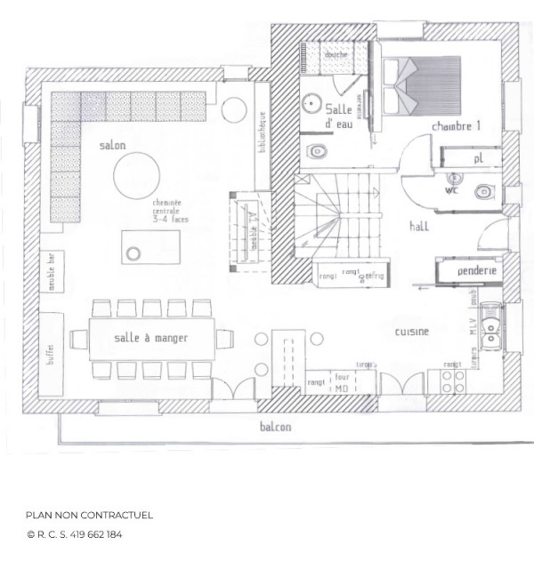
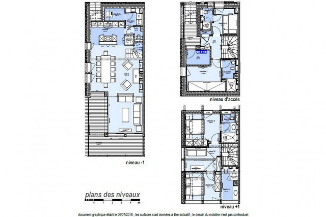
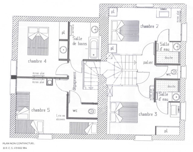
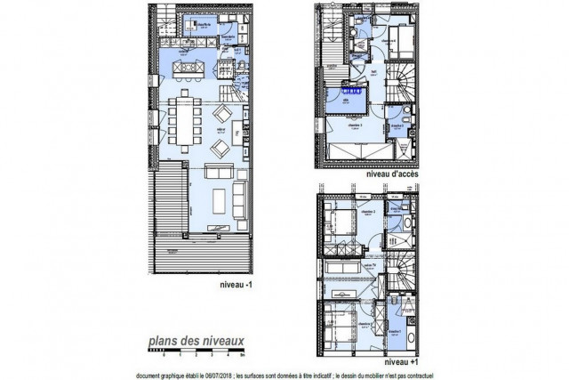
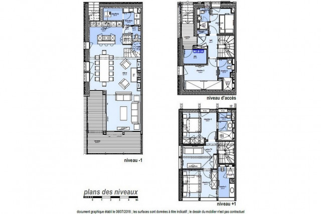
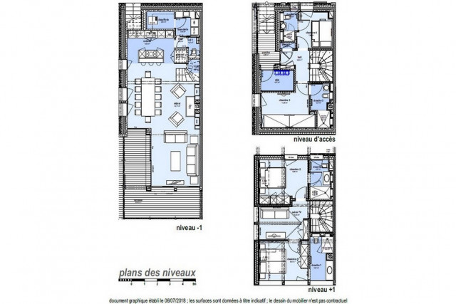
La Villette area 10 people 200 m2






























































































































































































































































































































































































































































