Apartments and chalets - Page 2
Les Places area 6 people 45-50 m2
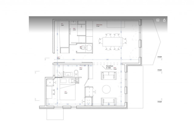
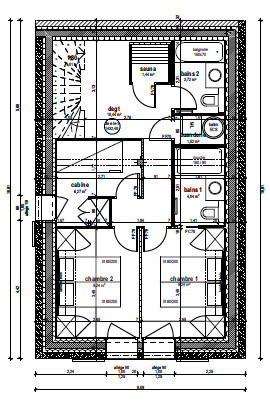
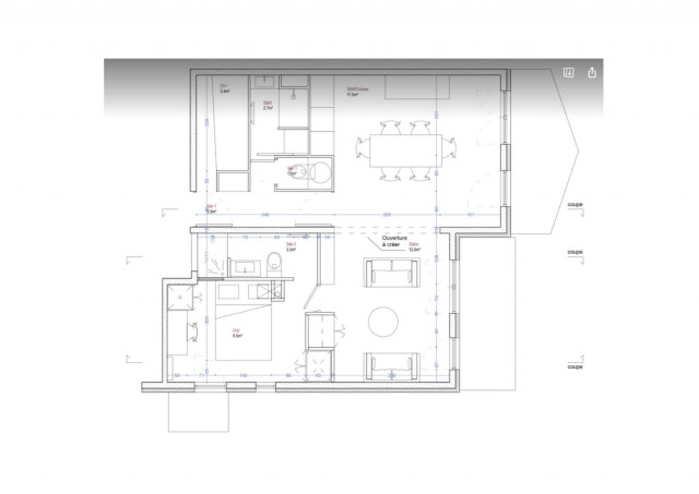
Les Places area 6 people 66 m2
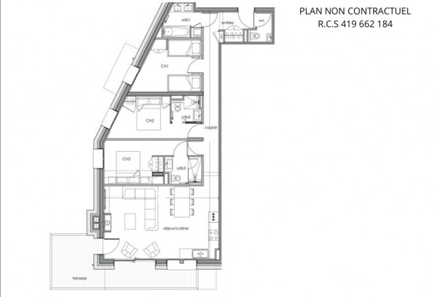
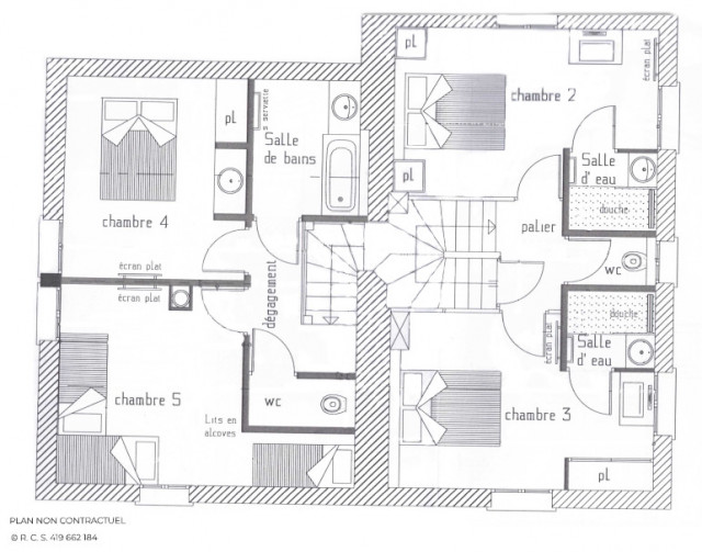
Les Places area 8 people 125 m2
Les Grangeraies area 6 people 32 m2
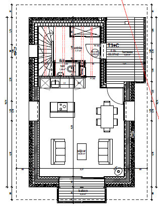
La Villette area 4 people 60 m2
Les Grangeraies area 6 people 60 m2
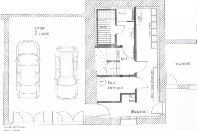
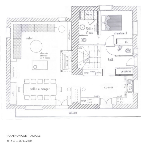
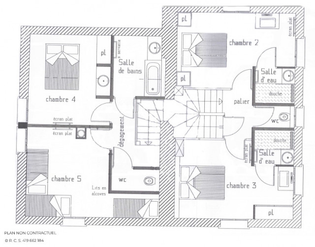
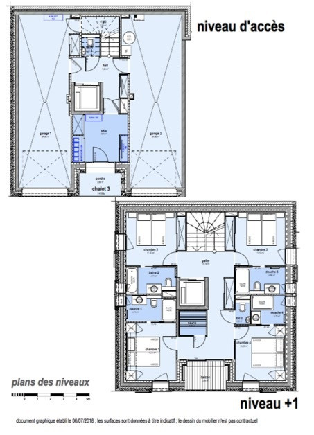
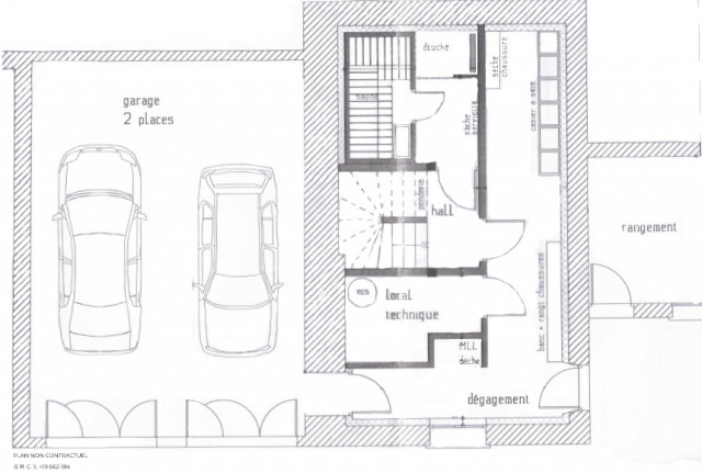
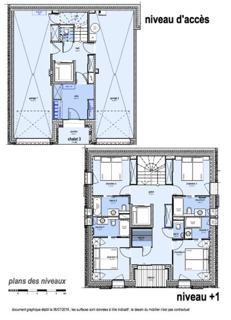
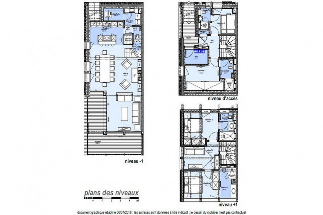
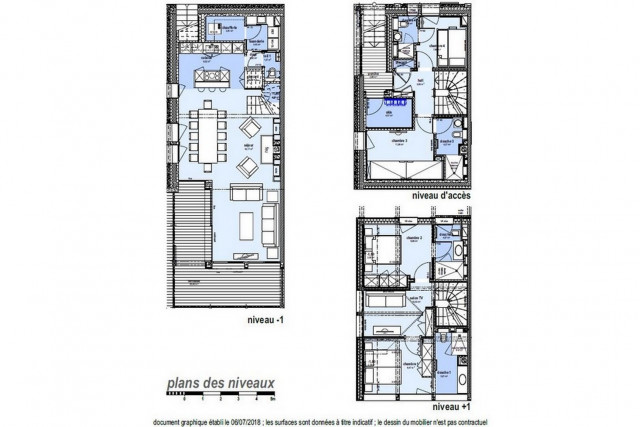
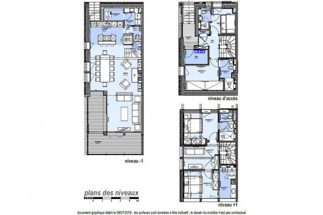
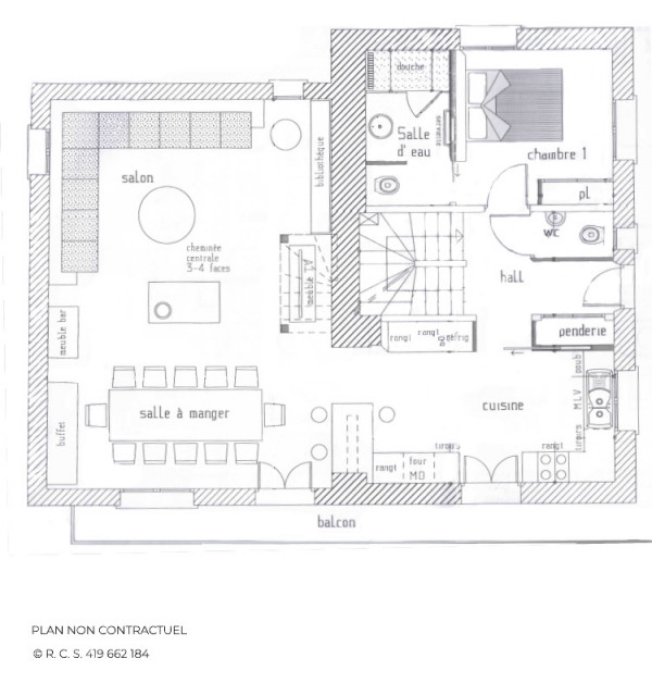
Saint Marcel Village 12 people 165 m2
Les Grangeraies area 6 people 47 m2

































































































































































































































































































































































































































