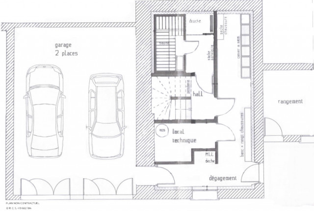
Apartments and chalets - Page 6
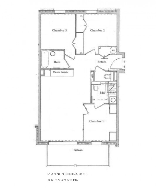
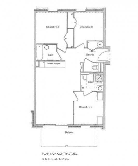
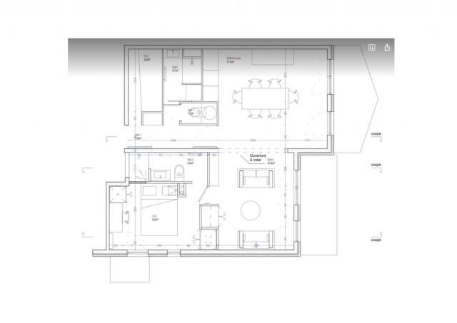
2 rooms alcove - LA BERGERIE DES CELESTINS (CELESTINS1)
- not classified
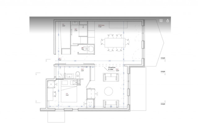
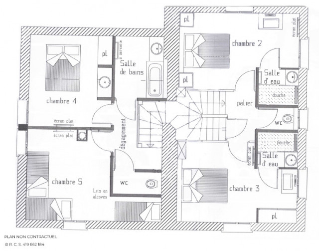
Les Places area 6 people 45-50 m2
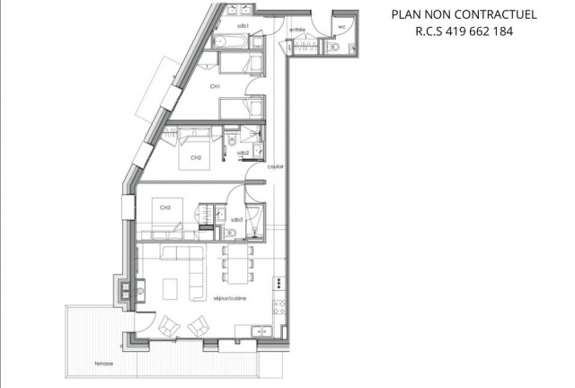
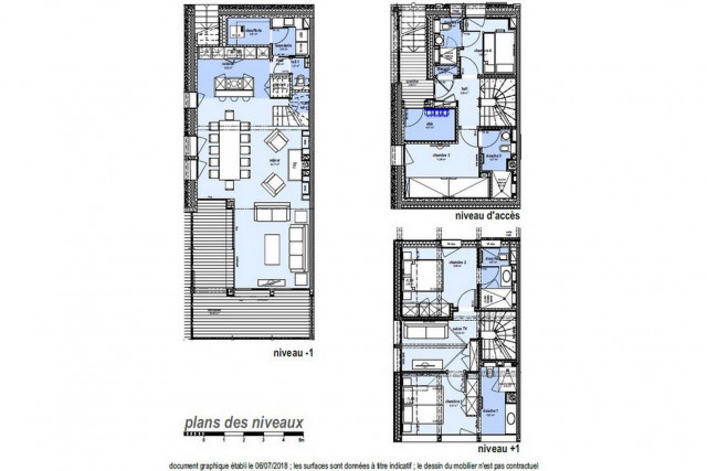
Les Places area 8 people 125 m2
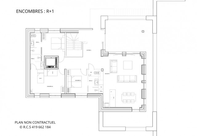
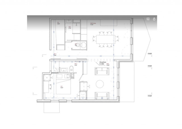
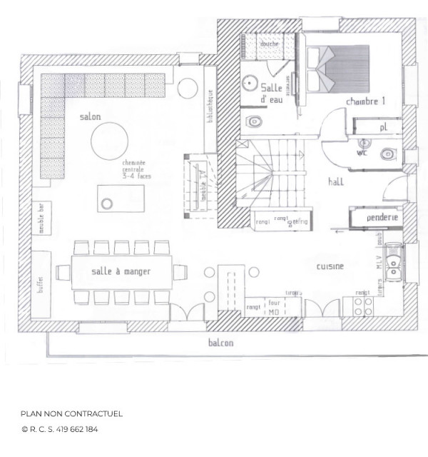
Les Grangeraies area 4 people 52 m2
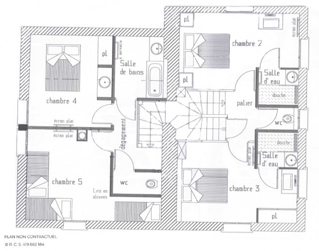
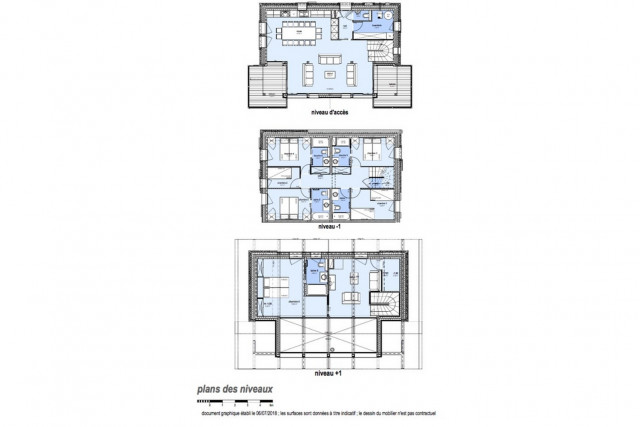
Les Grangeraies area 6 people 84 m2





























































































































































































































































































































































































































































































































