7 rooms mezzanine - CASEBLANCHE (CS00K3)
- not classified
Presentation
Bathed in sunlight, with its refined decoration, Chalet CHANTARELLA, right at the foot of the gondola, offers you ski holidays in a set of discreet luxury. Coming back from your runs, you will enjoy the private sauna and the outdoor jacuzzi. Take in the stunning panoramas whilst sunbathing on the large terrace and gather around the fireplace in the chalet's cosy lounge.
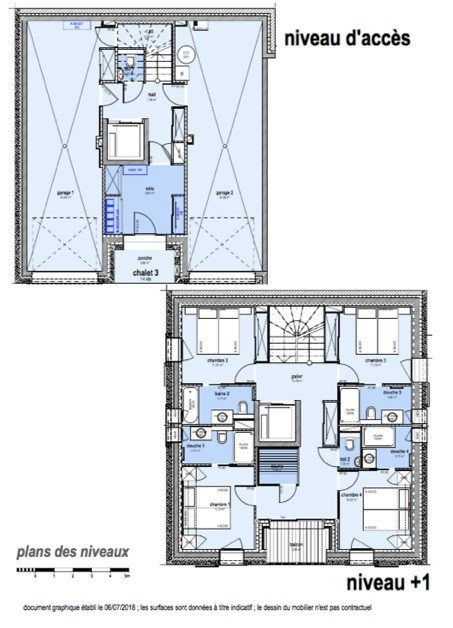
Chalet Chanterella has a generous surface of 200m², with a lift to get through its 3 floors, and offers comfortable accommodation for 14 people.
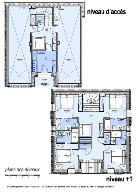
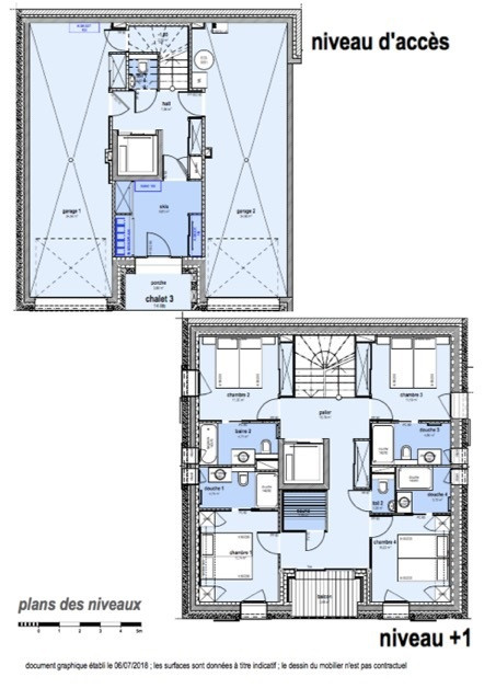
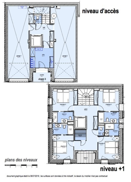
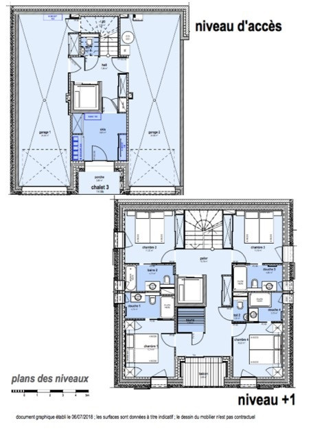
Ground floor:
Private ski-room with boots dryer and gloves dryer.
2 indoor garages, each fitting 1 or 2 vehicles.
Independent toilets.
1st floor:
1st en-suite bedroom: 2 twin beds, bathroom with shower and toilets.
2nd en-suite bedroom: 2 twin beds, bathroom with shower.
3rd en-suite bedroom: 2 twin beds, bathroom with shower and toilets.
4th en-suite bedroom: 2 twin beds, bathroom with bathtub and toilets.
Beds can be made up as double king-size beds on request.
Independent toilets.
Private sauna and balcony.
2nd floor:
Nice 50m² large living room composed of a cosy lounge with chimney and a bright dining area.
Fully-equipped kitchen with induction hob, oven, microwave, dishwasher, toaster, kettle and Nespresso machine.
Separate TV lounge.
Large 40m² terrace with an outdoor Jacuzzi.
3rd floor:
5th en-suite bedroom: 1 king size bed, wardrobe, bathroom with bathtub, shower and toilets.
6th en-suite bunkroom: bunk beds for 4, bathroom with large walk-in shower and toilets.
Included services:
WIFI, 2 private garages.
In winter: Beds made up. Towels, bathmats and tea towels provided
Other: Non-smoking accommodation. No pets please.
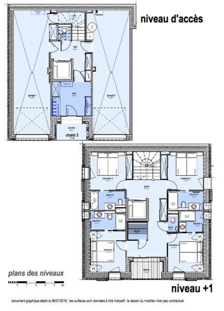
Chalet Chanterella has a generous surface of 200m², with a lift to get through its 3 floors, and offers comfortable accommodation for 14 people.
Ground floor:
Private ski-room with boots dryer and gloves dryer.
2 indoor garages, each fitting 1 or 2 vehicles.
Independent toilets.
1st floor:
1st en-suite bedroom: 2 twin beds, bathroom with shower and toilets.
2nd en-suite bedroom: 2 twin beds, bathroom with shower.
3rd en-suite bedroom: 2 twin beds, bathroom with shower and toilets.
4th en-suite bedroom: 2 twin beds, bathroom with bathtub and toilets.
Beds can be made up as double king-size beds on request.
Independent toilets.
Private sauna and balcony.
2nd floor:
Nice 50m² large living room composed of a cosy lounge with chimney and a bright dining area.
Fully-equipped kitchen with induction hob, oven, microwave, dishwasher, toaster, kettle and Nespresso machine.
Separate TV lounge.
Large 40m² terrace with an outdoor Jacuzzi.
3rd floor:
5th en-suite bedroom: 1 king size bed, wardrobe, bathroom with bathtub, shower and toilets.
6th en-suite bunkroom: bunk beds for 4, bathroom with large walk-in shower and toilets.
Included services:
WIFI, 2 private garages.
In winter: Beds made up. Towels, bathmats and tea towels provided
Other: Non-smoking accommodation. No pets please.
Your advantages with this accommodation
- Location :
- Ski in / ski out (under condition that the slope is open)
- Less than 200m far from the slopes
- Your advantages with this accommodation :
- Up to 27% off your ski passes (depending on the period, only in presale).
- All season long, discounts on your ski equipment rentals.
Location Information
- Exposure :
- West facing
- Location :
- Ski in / ski out (under condition that the slope is open)
- Less than 200m far from the slopes
- From 200 to 400m far from the slopes
- District :
- St Martin de Belleville
Summary
- wifi access

- Dishwasher

- Balcony / Terrace

- Well-being space/ swimming pool

- Electric car charging point

- Car park :
- Parking lot (with supplement, upon request at the moment of booking)
- Pets :
- Pets forbidden
Equipment
- Elevator :
- Elevator
- Kitchen equipment :
- Oven
- Microwave
- Dishwasher
- Washing machine
- Toaster
- Living room equipment :
- TV
- WiFi connection
- Balcony/terrace :
- Balcony / terrace
- Bathroom :
- Hair dryer
- Pool, Steamed bath, Sauna :
- Sauna
Resort's Situation Map
Destination
CHALETS CASEBLANCHE
RUE CASEBLANCHE
73440
SAINT-MARTIN-DE-BELLEVILLE
GPS coordinates
Latitude : 45.375767
Longitude : 6.505932












































